Unit 23, Battersea Business Centre
99-109 Lavender Hill
London SW11 5QL
Get a Free Consultation
Get a free consultation today





    0207 228 1324 Get in touch via phone
    [email protected] Get in touch via email

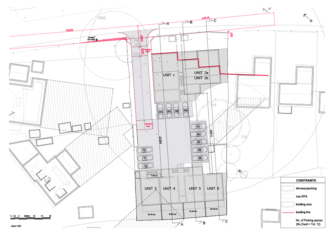
    7 Houses

    The project is a residential development consisting of seven units with private gardens and parking spaces. It features two blocks consisting of three units to the front and four to the back. The front block is designed to align with the existing street frontage and the rear block has been scaled down to minimize visual impact on neighboring properties, working with the sloping topography. The development includes a 5m-wide vehicle access road, a pedestrian pathway, communal cycle storage, and private bin storage for each unit.

    Project Specifications

    Project Scope: New Build Houses.

    Architectural Services Requested: Concept (Briefing & Survey), Planning (Application & Scheme Design), Visualisation (3D Modelling).

    ?>
    chris walters

    We are glad we found Armstrong Simmonds Architects to help us on our first project. We had bought a run-down terraced house near Clapham Common with the goal of extending and refurbing to increase value. John initially impressed us by first listening carefully to what we wanted to do, then showing us creative ways to achieve the results and finish we were looking for.

    Safe to say we certainly have managed that and both John and Alan have been instrumental in doing so. The guidance and consideration at every step have exceeded our expectations and Alan’s attention to detail during the build has been critical for the high standards we have set for this project.

    They have provided us with a service which reflects every stage of the design and build. Starting with the initial drawings, schedule of works, tendering and interior design. We also employed ASA for Contract Administration to be the key middle-man between us and the builder, which they were happy to help.

    We are now underway with our second project with ASA and they have been able to deliver the final drawings for planning within a fairly tight time frame, without hindering on quality. I know the whole team worked hard to help bring our vision to life and it’s been brilliant working with them over the last 18 months. They have shown a great ability to solve any issues that arose quickly and are able to communicate effectively with different contractors at all levels. I have no doubt the next redevelopment project will go well.

    ...>>
    ?>
    Matt Wood

    We chose Alan and John for our extensive project and incredibly pleased with that choice and the result. We have a Victorian terraced house and wanted to do a classic loft conversion and ground floor extension. The Armstrong Simmonds team provided a vision which achieved our goals, but with a design we could have never have thought of ourselves which we love. We used them from start to finish and are incredibly glad we did. Alan supported us through the tender and renovation processes, and we are incredibly pleased with the end-product and the quality of work of builder Cezar of Vecchini. We would highly recommend Armstrong Simmonds for their vision, design thoughtfulness and exceptional assistance through the project. Thanks team!

    ...>>
    ?>
    Dom & Kamilla

    We worked with Alan and the team from Armstrong Simmonds for 3 years from start to finish to achieve the full renovation of a London townhouse. It was a challenging brief given the nature of the property but collectively what has been achieved is an outstanding end result. Alan and John thoughtfully incorporated our vision with the realities of converting an old Victorian house and the scrupulous attention to detail, symmetry and balance achieved in the design were instrumental in us choosing Armstrong Simmonds in the first place.

    In addition Alan supported us through the tender and during the renovation working with our excellent builder Cezar of Vecchini to deliver the brief. I would highly recommend if you are looking for a team to turning your vision to the end product with a very high attention to detail while still being good humoured and a generally great guy to work with. Thanks again team. Dom and Kamilla

    ...>>
    ?>
    Michael van Ree

    John and his team have been brilliant to work with for our full house renovation and extension in SW London. Our house is quite unique and that combined with it being in a conservation area we knew it wouldn’t be a straight forward planning process – but Armstrong Simmonds did a fantastic job and helped us navigate us through every step. We couldn’t be happier with the detailed design and outcome.

    ...>>
    Let’s Start Your Project Together
    Feel free to reach out to us at 0207 228 1324 or [email protected] with any inquiries about your project.
    Alternatively, click here to send us your details, and we’ll be delighted to get in touch with you.
    Сontact us to set up meeting